Assisted Living Facility Renovations
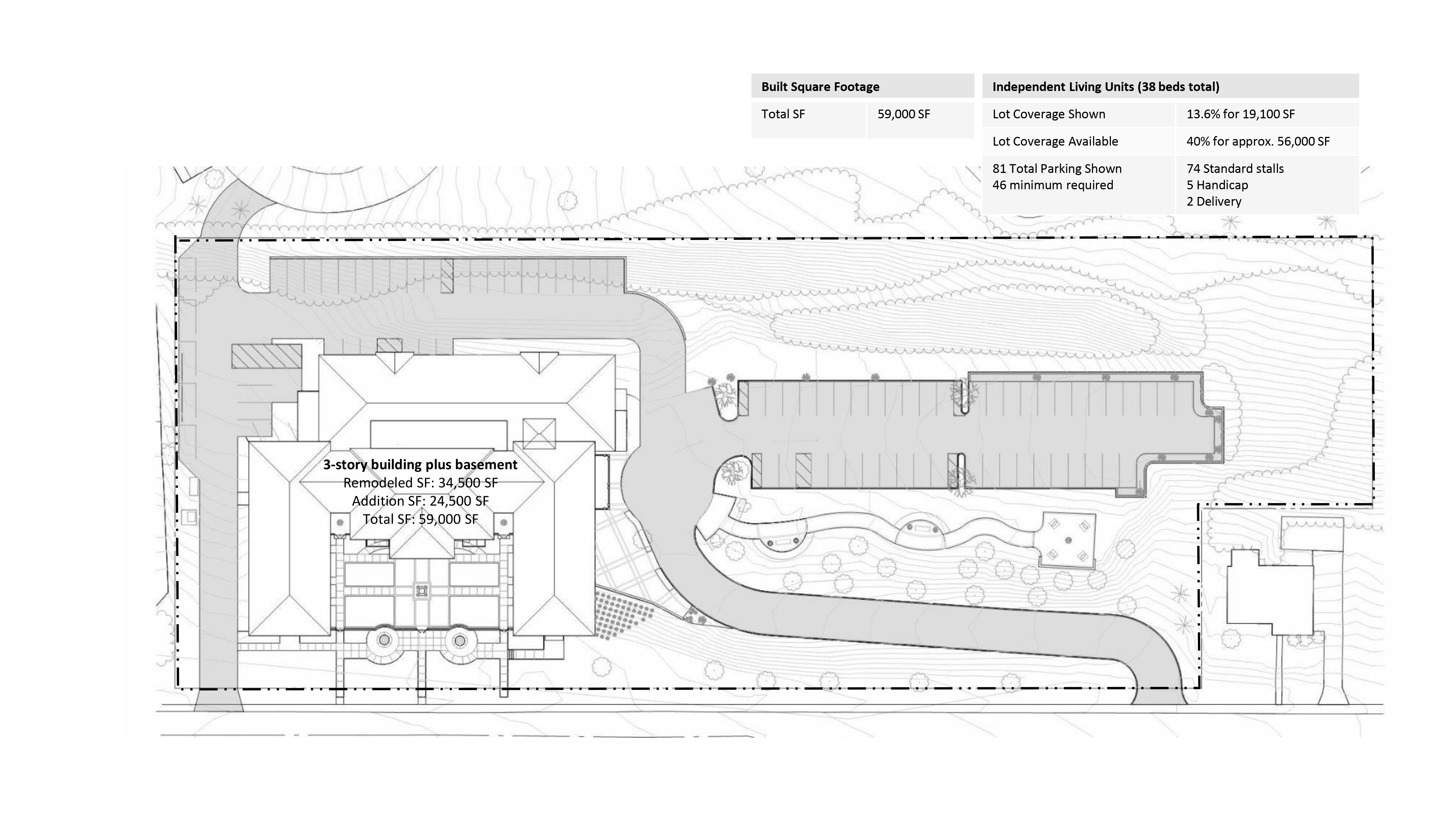
I did a site analysis of the unique topography and sewage, as well as the maximum lot coverage required by code. I also modeled different housing typologies to place onto the site. We offered the client different projected options to either build housing units into the existing shell, or to demolish it entirely and place housing units on the site instead.
Townhouses Iterations
Townhouses Iterations

Buildout Addition Iterations
© Vic Yong
