Ohringer Building
The Ohringer Building is a residential community for artists in Braddock. It is a former furniture department store that was active in the 20’s and 30’s. This residence is not just a community building, but an example of historical preservation.
Duties for Ohringer include:
- Taking field measurements and photographs of the existing building
- Researching the history of the building and compiling my findings on a visual spread
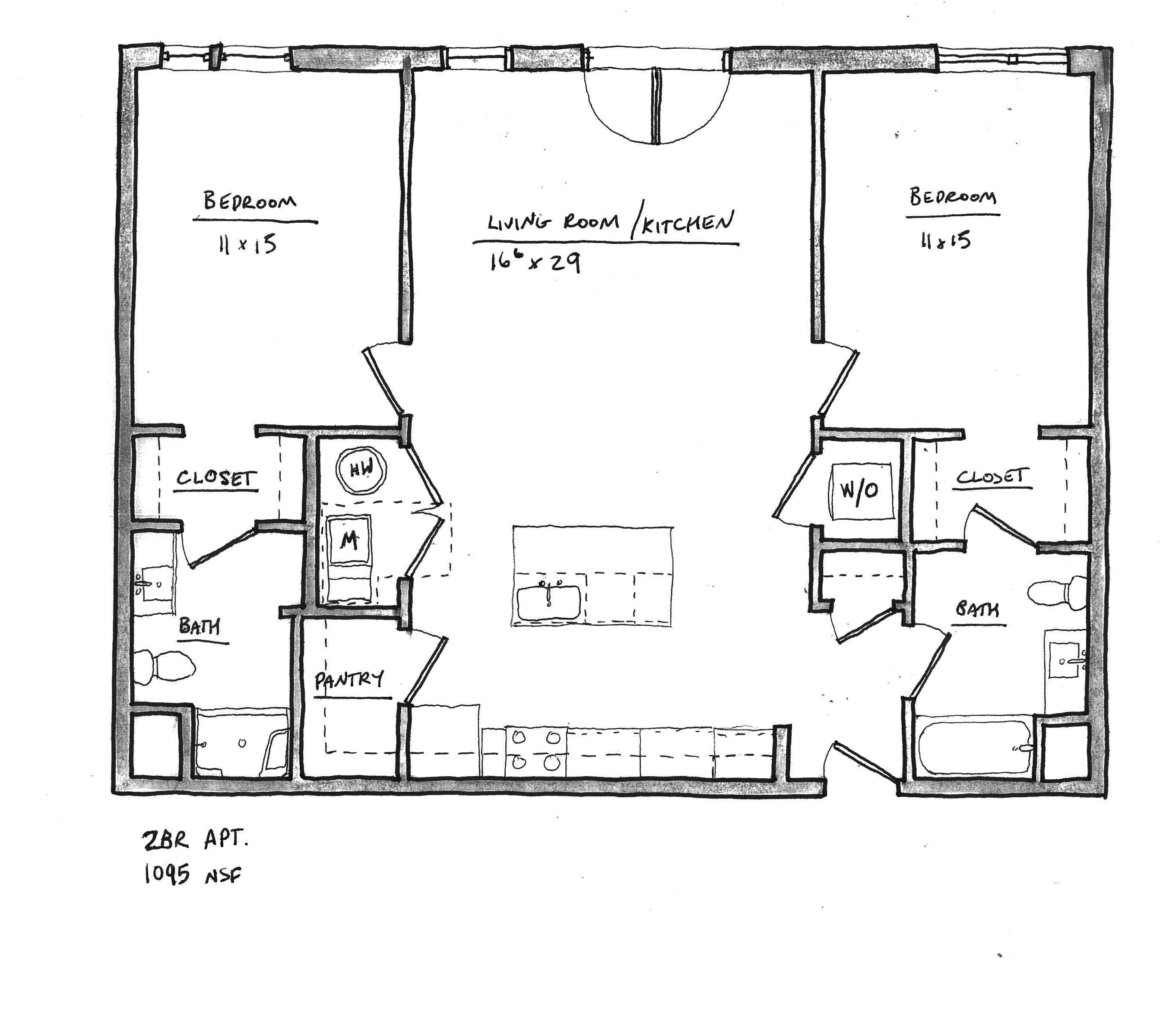
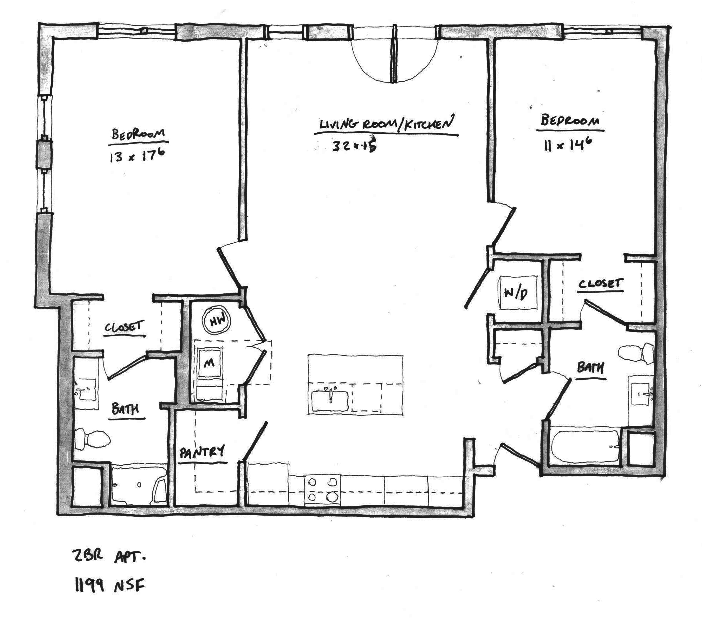
- Creating hand sketches of plans for individual housing units
© Vic Yong
