︎
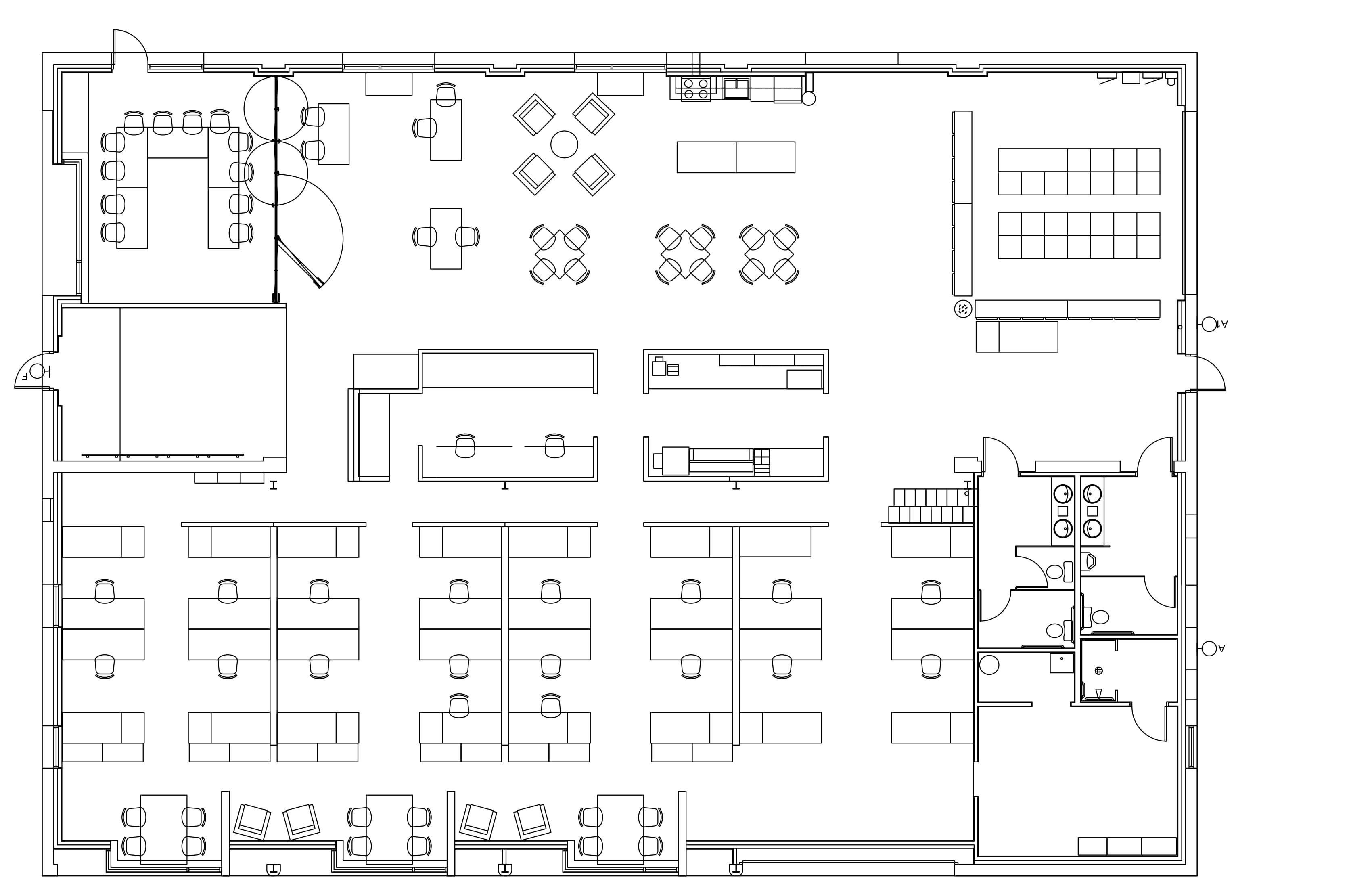
Penn29 Office Renovations
Completed for Rothschild Doyno Collaborative’s 2018 office renovations for creating a loft lounge at the back of the office
︎
© Vic Yong
Running on Cargo