︎
Platform Frame Dwelling
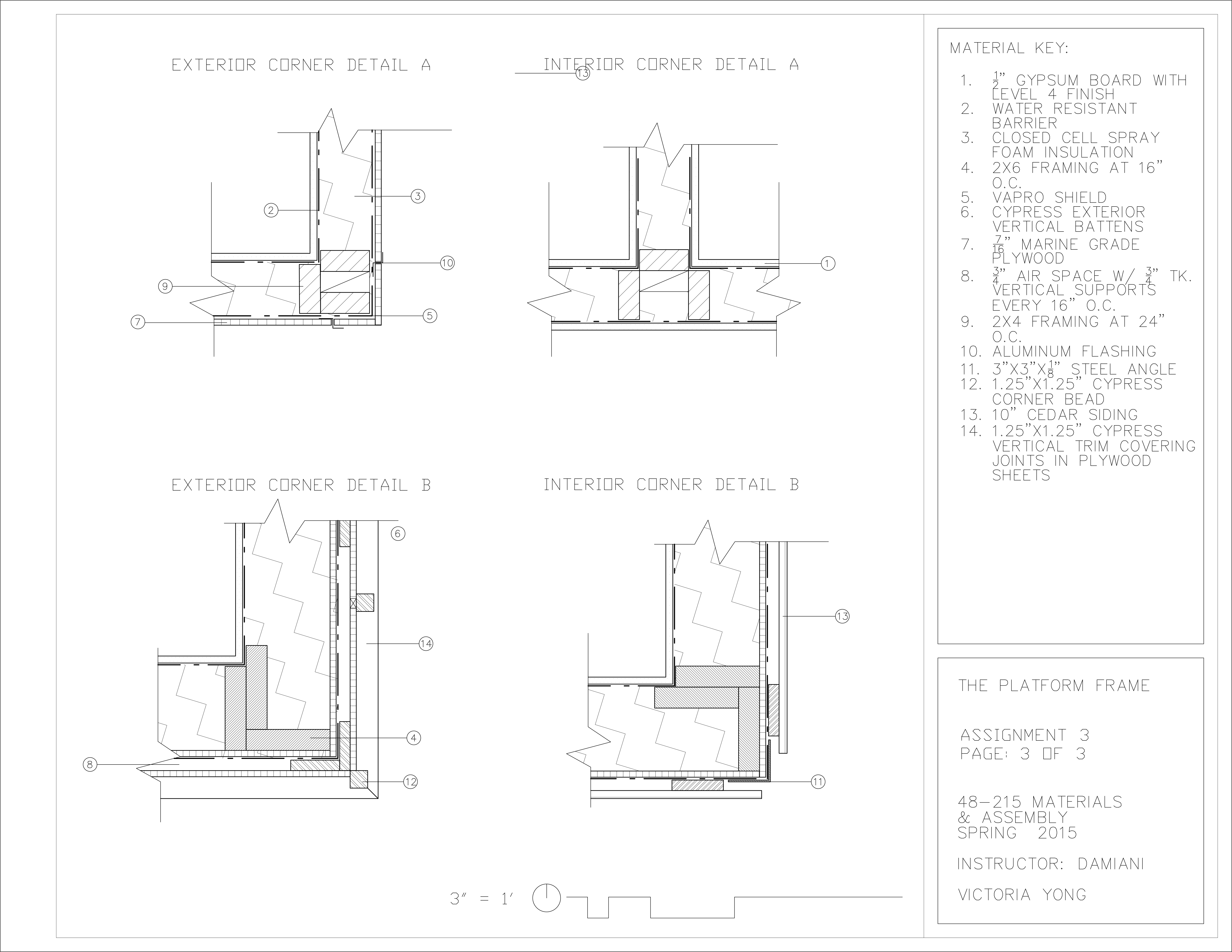
The light timber construction platform frame of a residential building. The drawing set contains framing plans, an axon, and 4 corner details.
︎
© Vic Yong
Running on Cargo